.locuință colectivă nZEB

Clădirea este definită de un concept volumetric puternic – un cub alb, cu linii clare şi forme pure ce creează un contrast subtil şi elegant față de contextul arhitectural predominant tradițional din proximitate.

.client
Spitalul Murgeni
.an
2023
.categorie
.arhitectură

.concept

Proiectul de locuință colectivă pentru tineri profesioniști din domeniile medicale și educaționale a fost realizat la standarde nZEB, integrând un design minimalist modern care îmbină funcționalitatea cu estetica contemporană.

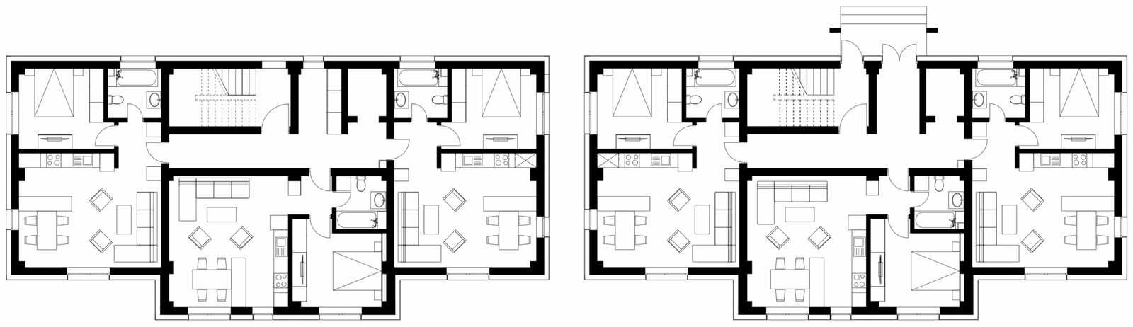
Clădirea, formată din 12 apartamente egale dispuse pe 4 niveluri, este integrată în contextul construit urban printr-o paletă cromatică echilibrată ce include gri deschis, gri antracit, alb și clincheri de cărămidă aparentă, iar alăturările texturale creează un joc subtil între materiale.

.elemente de design

Configurarea spațială a fost atent gândită pentru a satisface cerințele specifice locuințelor de serviciu, oferind spații eficiente și confortabile, în armonie cu nevoile tinerilor medici și profesori.

Conformarea la normativele nZEB a presupus adoptarea unor soluții tehnice avansate, ce presupun maximizarea performanțelor energetice ale anvelopei clădirii și integrarea sistemelor de energie regenerabilă și de eficientizare a consumului intern.

.layout

Reprezentarea grafică a intervenției, ilustrând configurarea spațială, compartimentarea și modul de optimizare a suprafeței.

Vezi mai multe proiecte: